Note: This website is not affiliated with the Beaverdam Valley Neighborhood Association
BVNA sent this email on 2/13/2026
Hello Beaverdam Valley Community,
Here is the latest of what we know regarding a potential sale of 408 Beaverdam Rd, the 10.4-acre vacant land parcel owned by Revol Church.
The church is exploring the sale of part or all of the property to a local builder for residential development. After learning of the potential sale, BVNA and neighbors who live adjacent to the property opened a dialog with the church to understand the nature of the proposed land sale. This note is to share the information we have and to provide background and context as we understand it.
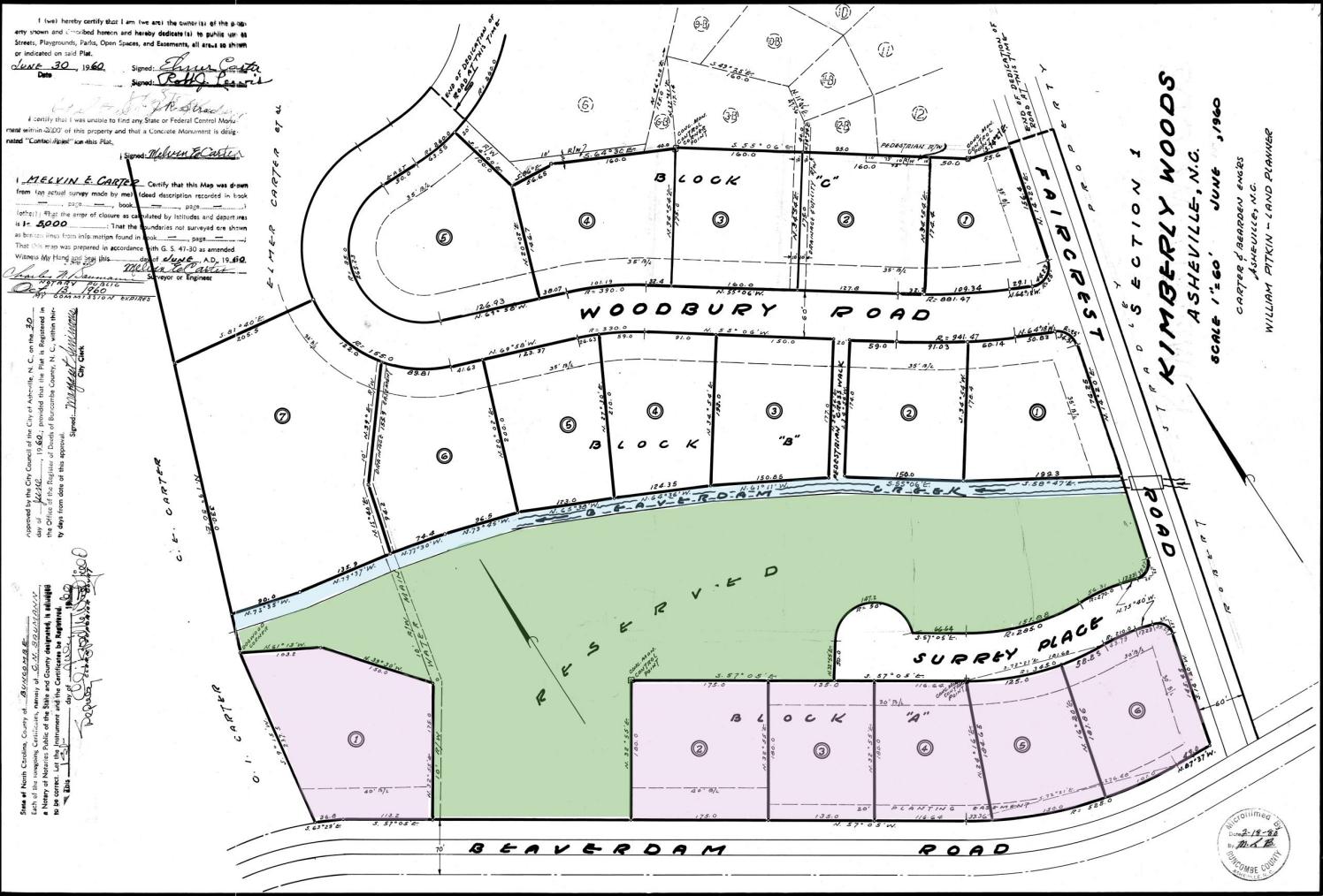
The property, deeded to Revol Church, is part of the Kimberly Woods planned development that dates to the 1960’s. (Refer to the Subdivision Plan below). The subdivision includes twelve lots on Woodbury Road, and another six lots along Beaverdam Road, from Faircrest Road on the east to the house across from the church on the west which would be accessed by a new road off Faircrest Road. The 1960s planned Kimberly Woods subdivision map (below) establishes fixed property lines as well as protective covenants that prevent further subdivision of the lots or land. Residential development on these six designated lots would conform to existing zoning laws.
The remainder of the land outside the six lots, totaling approximately 6-acres, lies within a FEMA floodplain which is labeled on the map below as ‘Reserved’. This green space was originally set aside in legal covenants for neighborhood and church use and was indicated as undevelopable without approval by Kimberly Woods subdivision members.
After Revol listed the land for sale, church leaders met with a representative of Kimberly Woods and BVNA to discuss land use options, with the neighborhood’s aim to preserve some or all the land for green space. The church elected to first explore a sale to a residential developer. Residents of Kimberly Woods and other interested neighbors have maintained open channels with the Church in the express hope that the undevelopable areas of the land can be dedicated to permanent green space for the enjoyment of the entire Beaverdam Valley community.
At present, the developer is conducting due diligence to determine if the land and lots included in the subdivision map are feasible for development. As part of that effort, the church commissioned a survey to determine the precise location and outline of the lots and access road. An environmental assessment will be conducted on the upper levels of the property which were formerly used as an unauthorized dump. We are not aware of a firm plan or purchase contract in place at this time.
BVNA acknowledges that the property is owned by the church and recognizes their right to sell and/or develop the land in accordance with the covenants running with the land. While we know there are many who use and love the land, including us, we urge neighbors to approach the situation, and people, with civility and kindness as we consider the possible options available to neighbors and work toward a positive outcome.
Thank you Beaverdam Valley Neighborhood Association
